Schöne, Moderne 3-Zimmer-Dachgeschosswohnung in zentraler Lage
+++ACHTUNG+++ Bitte beachten Sie, dass wir Ihnen erst einen Besichtigungstermin anbieten können, wenn uns eine ausgefüllte Mieterselbstauskunft vorliegt. Diese ist unten bei "Weitere Dokumente" als PDF-Datei hinterlegt.
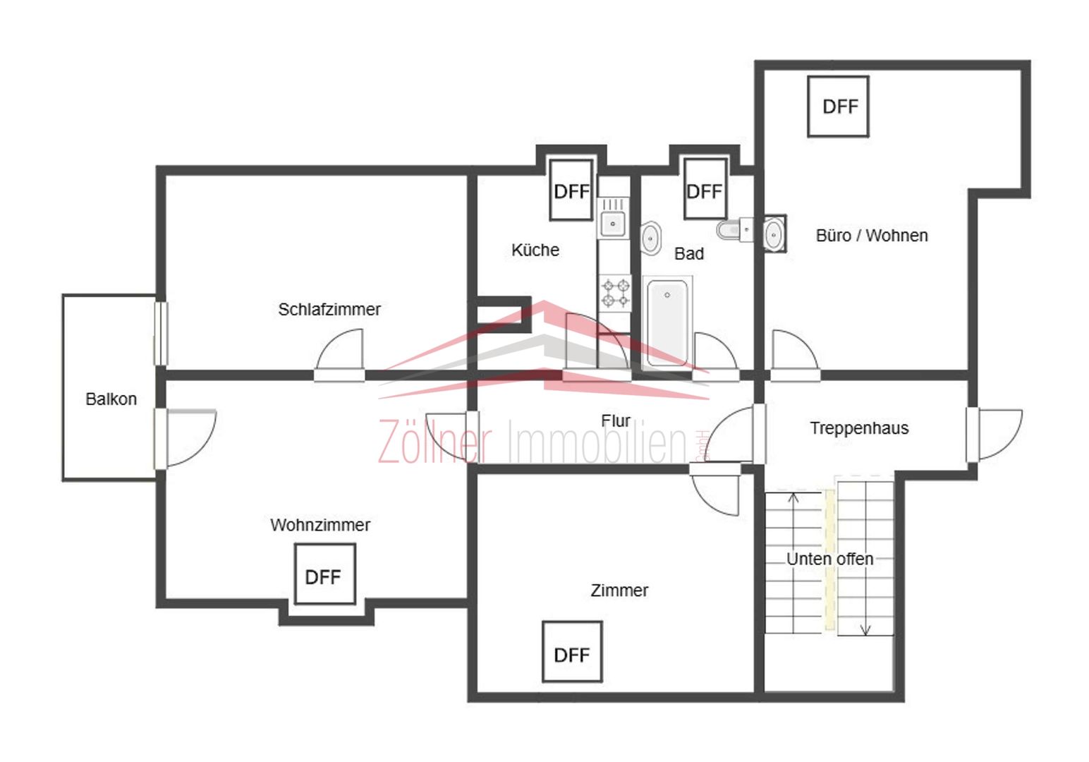
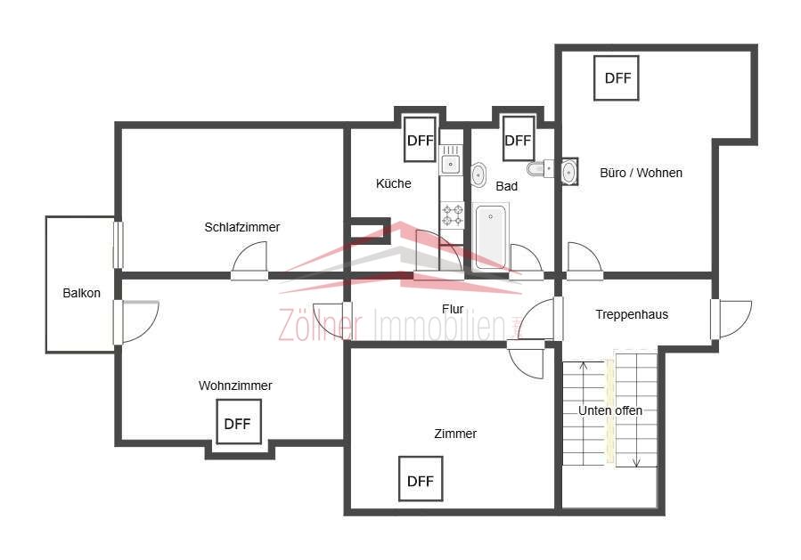
Willkommen in dieser attraktiven 3-Zimmer-Wohnung, die Ihnen auf 73 m² ein gemütliches und helles Zuhause bietet. Diese moderne 3-Zimmer-Wohnung umfasst ein großes helles Wohnzimmer mit Zugang zum Balkon und angrenzendem Schlafzimmer, ein Büro und ein helles Bad mit Badewanne, Waschbecken, WC und Bademöbeln. Die Küche, die mit einer Einbauküche inklusive Elektrogeräten ausgestattet ist, ist in der Kaltmiete eingerechnet.
Mit zur Wohnung gehört ein Zimmer, das sich direkt vor der Wohnung befindet. Es ist mit einem Waschbecken ausgestattet und kann als Gästezimmer oder als Büro genutzt werden.
Ein Garagenstellplatz steht Ihnen für eine monatliche Miete von 60 € zur Verfügung.
Zusätzlicher Stauraum befindet sich in einem dazugehörigen Kellerraum sowie in den beiden Dachnischen innerhalb der Wohnung.
Gerne stehen wir Ihnen für Besichtigungen nach den Feiertagen ab dem 07.01.2026 wieder zur Verfügung.
- Einbauküche inkl. Elektrogeräten
- Bodenbeläge: PVC, Fliesen
- Decken und Wände sind tapeziert, Raufaser, weiß gestrichen
- Öl-Zentralheizung
Aalen befindet sich etwa 70 Kilometer östlich der Landeshauptstadt Stuttgart und liegt im Herzen der Schwäbischen Alb. Die Stadt erstreckt sich in einem Talkessel entlang des Flusses Kocher, umgeben von sanften Hügeln und bewaldeten Gebieten.
Aalen ist verkehrstechnisch gut angebunden. Über die Bundesautobahn A7, die von Ulm nach Würzburg führt, ist die Stadt leicht zu erreichen. Zudem verfügt Aalen über einen Bahnhof, der regelmäßige Zugverbindungen in verschiedene Städte der Region und darüber hinaus bietet.
In der Umgebung von Aalen gibt es zahlreiche Naturschutzgebiete, Wälder und Wanderwege, die zu Erholung und Freizeitaktivitäten im Grünen einladen. Die Stadt selbst hat eine historische Altstadt mit malerischen Fachwerkhäusern, engen Gassen und gemütlichen Plätzen. Hier finden sich auch verschiedene Einkaufsmöglichkeiten, Restaurants, Cafés und kulturelle Einrichtungen.
Aalen ist bekannt für seine lange Geschichte, insbesondere in Bezug auf die Römerzeit. Das Limesmuseum und die Limes-Thermen sind beliebte Touristenattraktionen, die Einblicke in die römische Vergangenheit der Region bieten.
Zusammenfassend lässt sich sagen, dass Aalen eine idyllische Stadt auf der Schwäbischen Alb ist, die sowohl natürliche Schönheit als auch historisches Erbe zu bieten hat.
- Max. 2 Personen
- Hunde und Katzen sind nicht erwünscht
- Eigenständiges Einkommen wird vorausgesetzt