Ein- Zweifamilienhaus in ruhiger Lage von Tannhausen
Zum Verkauf steht dieses Ein-/Zweifamilienhaus, erbaut im Jahr 1968.
Es besticht durch ihren authentischen Charakter und bietet ein solides Fundament für individuelle Gestaltungsmöglichkeiten.
Mit einer Wohnfläche von 170,21 m² (Erdgeschoss + Obergeschoss) und einem Grundstück mit 670 m² bietet diese Immobilie Raum für vielfältige Nutzungskonzepte.
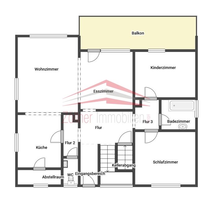
Das Haus verfügt im Erdgeschoss über ein Wohn-/Esszimmer mit Zugang zum großen Balkon, 2 Schlafräume, eine Küche, ein Badezimmer mit Badewanne und Waschbecken, ein separates WC sowie über einen Flur.
Im noch nicht sanierten Dachgeschoss befindet sich ein Wohnzimmer, ein Esszimmer, zwei Schlafräume, ein Tageslichtbad, eine Küche und ein Flur.
Das Badezimmer ist mit einer Badewanne sowie zwei Waschbecken und einer Toilette ausgestattet.
Ein nach Süden ausgerichteter Balkon ist sowohl über die Küche als auch über das Wohnzimmer zu erreichen.
Das Haus ist voll unterkellert und bietet einen direkten, überdachten Zugang in den Garten.
Es steht ein Heizraum und 3 zusätzliche Kellerräume zur Verfügung.
Eine Garage und eine kleine Gartenhütte runden das Angebot ab.
Für weitere Informationen oder eine Besichtigung stehen wir Ihnen gerne zur Verfügung.
- 6.000 l Zisterne vorhanden
- Beheizt wird das Gebäude mit einer Öl-Zentralheizung, Gas und Fernwärme im Haus
- Fenster 2-fach-Isolierfenster von 1998
- Voll unterkellert
- Wasser/Abwasser: ursprünglich
- Elektrik zum Teil 2021 erneuert, im EG elektrische Rollläden
Die Immobilie liegt in Tannhausen. In der Nähe befindet sich Dinkelsbühl. Mehrere Buslinien sind fußläufig zu erreichen. Weiter entfernt gibt es mehrere Einkaufsmöglichkeiten und Kindergärten. Einige Museen, verschiedene Erholungs- und Sportangebote und eine gute medizinische Versorgung erreichen Sie schließlich ebenfalls im größeren Umkreis.