Neu renovierte, helle 3-Zimmer-Wohnung mit zwei Balkonen und herrlichem Ausblick in Aalen-Grauleshof
+++ACHTUNG+++ Bitte beachten Sie, dass wir Ihnen erst einen Besichtigungstermin anbieten können, wenn uns eine ausgefüllte Mieterselbstauskunft vorliegt. Diese ist unten bei „Weitere Dokumente“ als PDF-Datei hinterlegt.
Diese frisch sanierte 3-Zimmer-Wohnung befindet sich im 3. Obergeschoss eines gepflegten Mehrfamilienhauses mit Aufzug im Ortsteil Aalen-Grauleshof. Das Gebäude wurde 1979 in solider Massivbauweise errichtet und wird zentral über eine Gasheizung versorgt.
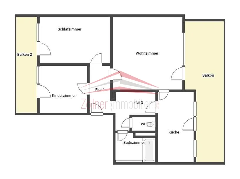
Die rund 90 m² Wohnfläche verteilen sich auf ein helles Wohnzimmer mit Zugang zum Hauptbalkon, ein Schlafzimmer mit zweitem Balkon, ein Kinderzimmer, eine Küche, ein modernes Badezimmer mit Dusche sowie ein separates WC.
Die beiden Balkone bieten Sonne und Aussicht zu unterschiedlichen Tageszeiten – ideal für Frischluftliebhaber.
Im Zuge der Sanierung wurden die Bodenbeläge erneuert (Vinyl in Holzoptik), Wände und Decken frisch gestrichen sowie das Badezimmer und WC modernisiert. Fenster und Türen sind original (Holz mit 2-fach-Isolierverglasung), in gutem Zustand.
Zur Wohnung gehören außerdem ein Außenstellplatz (30 € monatlich) sowie ein Kellerabteil. Ein Hausmeisterservice ist organisiert, die kleine "schwäbische" Kehrwoche ist selbst im Wechsel mit den anderen Parteien auf der Ebene durchzuführen.
Bitte beachten Sie, dass Besichtigungen erst wieder ab dem 04.05.2026 möglich sind. Wir bitten hierfür um Ihr Verständnis und stehen Ihnen für eine Terminvereinbarung ab diesem Zeitpunkt gerne zur Verfügung.
+ Vinylboden in Holzoptik (neu)
+ Neues modernes Tageslichtbad mit Dusche
+ Separates WC
+ Zwei Balkone mit Ausblick
+ Holzfenster mit 2-fach-Isolierverglasung
+ Aufzug im Haus
+ Kellerabteil
+ Außenstellplatz (30 €/Monat)
+ Hausmeisterservice bis auf die kleine "schwäbische" Kehrwoche
+ Gas-Zentralheizung
Die Wohnung liegt in ruhiger und doch zentraler Wohnlage im Aalener Stadtteil Grauleshof, nur wenige Minuten von der Innenstadt entfernt.
In der Umgebung befinden sich Einkaufsmöglichkeiten für den täglichen Bedarf, Bäckereien, Apotheken und Restaurants. Schulen, Kindergärten und Sportanlagen sind bequem zu Fuß oder per Fahrrad erreichbar.
Die Verkehrsanbindung ist ausgezeichnet: Eine Bushaltestelle liegt in unmittelbarer Nähe, der Bahnhof Aalen ist in wenigen Minuten erreichbar. Über die B29 und A7 besteht eine gute Anbindung nach Schwäbisch Gmünd, Heidenheim und Ulm.
Die Nähe zu Wäldern und Wiesen lädt zu Spaziergängen und Freizeitaktivitäten im Grünen ein – perfekt für alle, die stadtnah und dennoch ruhig wohnen möchten.
+ Für bis zu 3 Personen geeignet
+ Hund und Katze sind nicht erlaubt
+ Festes Einkommen wird vorausgesetzt